Home
About us
Company profile
Honor
Culture
Equipment
Products
All Product
Doors And Windows
Curtain
Industry
Other
News
Industry Information
Enterprise News
Service
Advantage
Contact us
Open Menu
Home
About us
Back
Company profile
Culture
Equipment
Product
Back
Doors And Windows
Curtain
Industry
Other
News
Back
Industry Information
Enterprise News
Service
Advantage
Contact us
中文
Product center
Door and window series
Ordinary doors and Windows series
45 series flat door
46 series slamming doors
50 series casement Windows
50 series flat door
50-1 Series casement Windows
PC55 series casement Windows
70 series flat door
80 series sliding window
80M series sliding door
802 series sliding window
8288 series sliding window
868 series sliding window
86 Series sliding doors
90-1 Series sliding window
60M series swing door
60TT-7 series casement Windows
70TT series casement Windows
70TT series swing door
75TT series casement Windows
75TT series swing door
85TT series sliding Windows
90M series sliding door
A80 series ordinary sliding Windows
90TT sliding window
Heat insulation broken bridge doors and Windows series
46TT series insulated ground door
50TT series insulated casement Windows
52TT series insulated casement Windows
55P series insulated casement window
55TT series insulated external flat door
55/63TT series insulated casement Windows
60TT series insulated casement Windows
65TT Series insulated casement Windows
70TT series insulated casement Windows
80TT series insulated sliding window
80TT series insulated sliding window
83H series insulated sliding window
90TT sliding door
99T series thermal insulation sliding window
112T series insulated sliding window
135TT series insulated lifting sliding doors
Rubber doors and Windows series
50K series laminated casement window
52K series glue injection
55K series rubber casement window
60K series laminated casement window
80K series glue sliding window
88K series glue sliding window
89K series rubber injection sliding door
90K series glue sliding window
92K series laminated sliding door
95K series glue sliding window
100K series rubber injection sliding door
New national standard doors and Windows series
50-7 series casement Windows
988 series sliding window
55TT-6 series insulated casement Windows
65TT-7 Series insulated casement Windows
65M series insulated flat door
95M series insulated sliding door
106TT series thermal insulation sliding window
Curtain wall series
Ordinary curtain wall series
110-180 series hidden frame curtain wall
110-190 series hidden frame curtain wall
130-190 series curtain wall
86, 120, 160 series light frame curtain wall
130-210 series open frame curtain wall
135 series open frame curtain wall
150 series open frame curtain wall
200 series curtain wall
Thermal insulation broken bridge curtain wall series
130, 170, 185-2 series insulation broken bridge curtain wall
140/160 series insulation broken bridge curtain wall
145/165/170/185/190 series thermal insulation broken bridge curtain wall
145/165/175/195(34mm) series of insulated broken bridge curtain wall
130/160/170(30mm) series of insulated broken bridge curtain wall
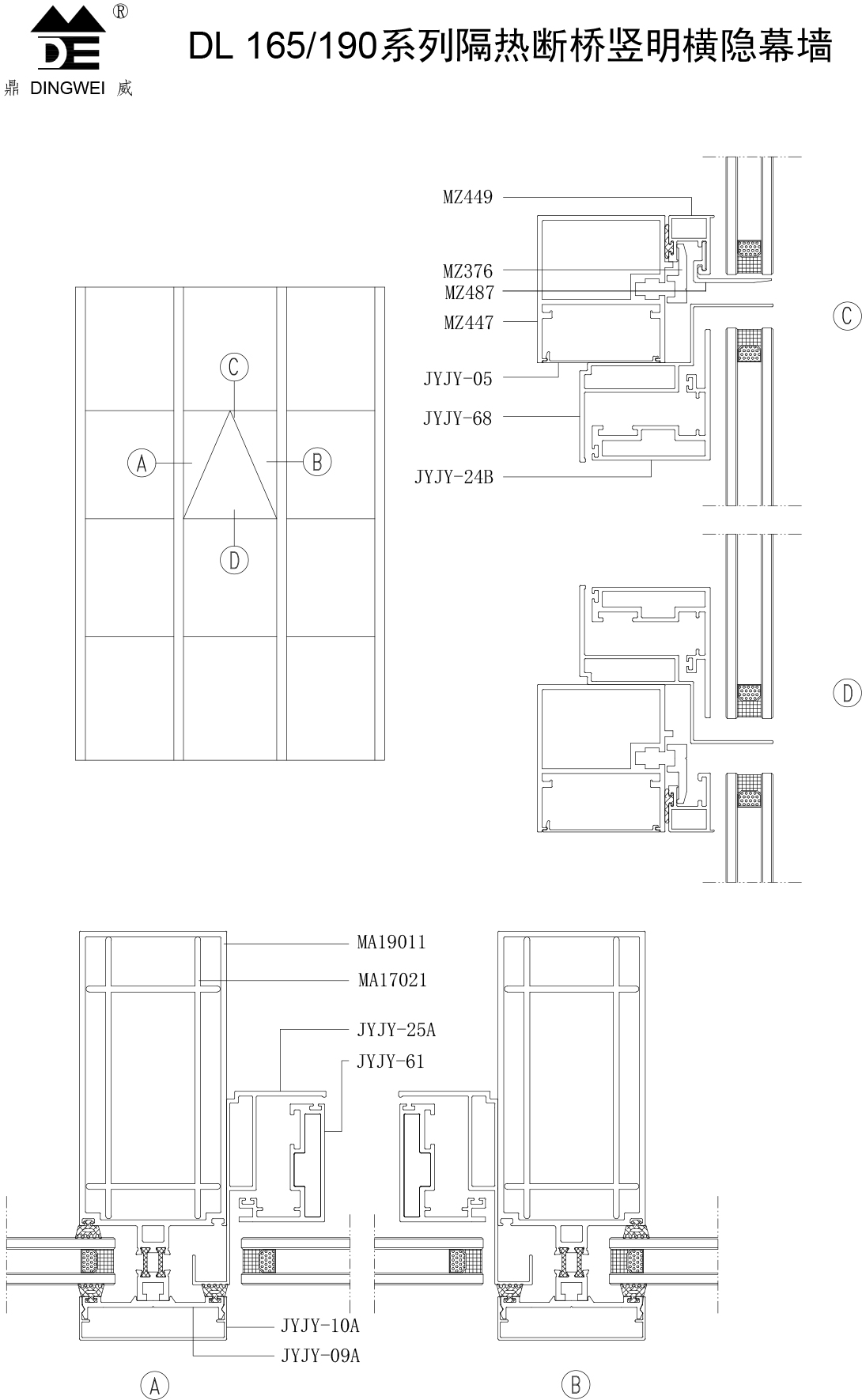
165/190 series insulation broken bridge curtain wall
Industrial series
Industrial profile series
Industrial fan blade
Solar border
Stone mold
Assembly line
radiator
Purification room series
Keel series
Other series
other
Stone pendant
Shutter grid series
handrail
Fixed crimping seat
Sunroom series
Ceiling keel aluminum square pass
Corner code series
Flat aluminum, Angle aluminum, groove aluminum, square pipe, round pipe
Hello:
Home
> 165/190 series insulation broken bridge vertical light horizontal hidden curtain wall
Back list
Prev
Next
Working hours:From Monday to Friday 09:00-18:00
Quick product navigation
Doors And Windows
Curtain
Industry
Other
About us
Company profile
Culture
Advantages
Service support
Address:No. 39 Xinhua Road, Huashi Town, Jiangyin City, Wuxi City, Jiangsu Province, China
Contacts:Mr Qu +86 13952487526
Contacts:Mr Gong +86 13373619000
Phone:+86 510-86218937
E-mail:qubin@xindinglong.cn
QQ:892318971
Follow us
Copyright © 2025 Jiangyin Xindinglong Aluminum Profile Co., Ltd Record number:
苏ICP备2022037428号-1
Designed by HUSEO
Home
Product
Phone
Map