网站首页
走进新鼎龙
公司简介
资质证书
企业文化
车间设备
产品中心
全部产品
门窗系列
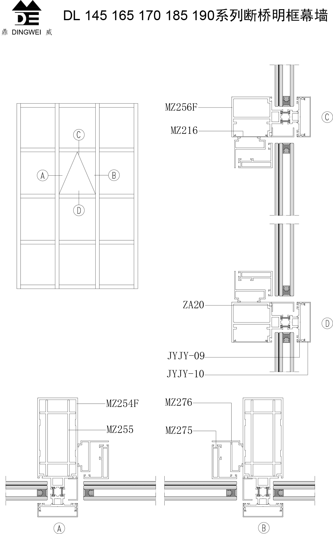
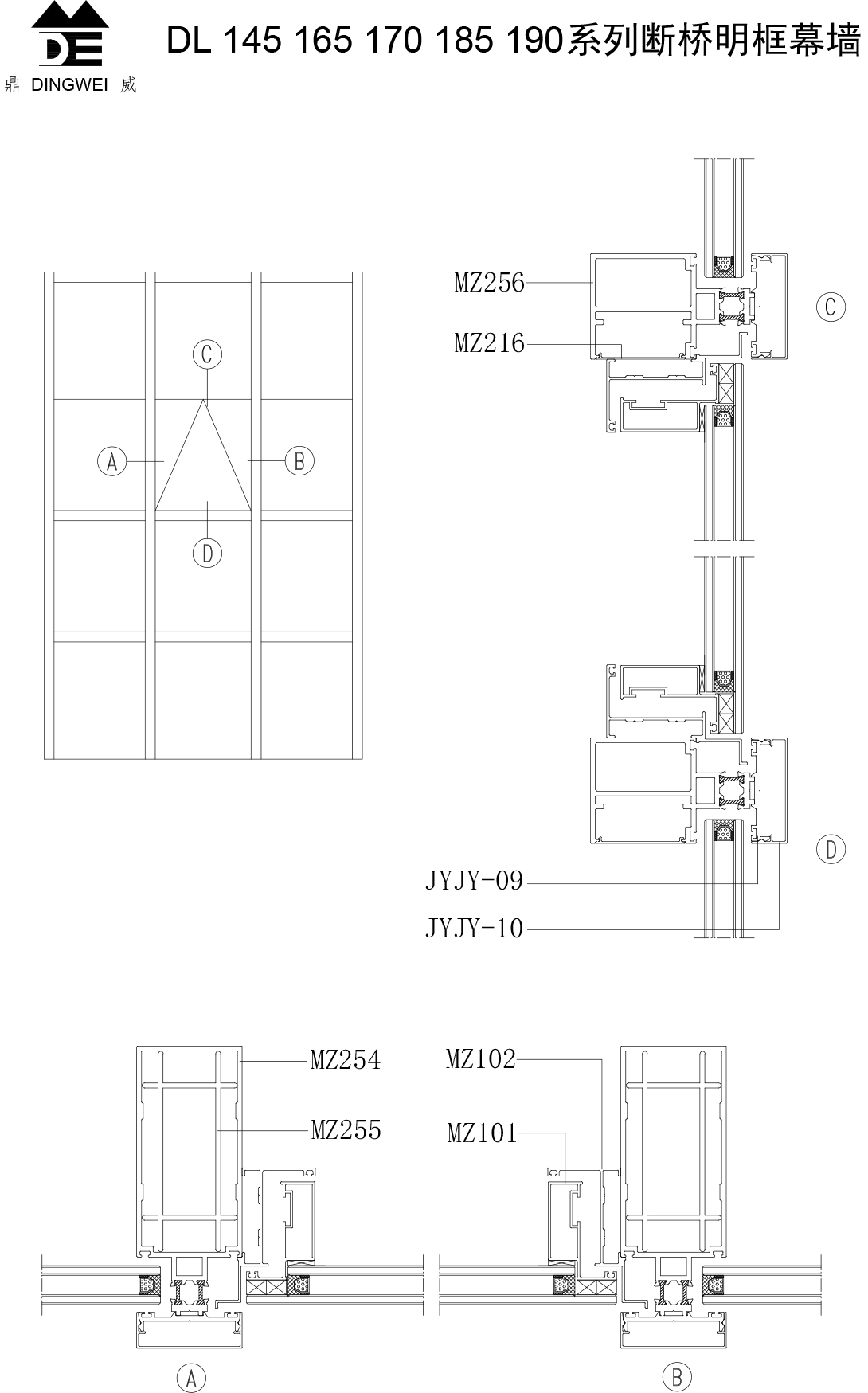
幕墙系列
工业系列
其他系列
资讯中心
行业资讯
企业新闻
服务支持
企业优势
联系方式
Open Menu
网站首页
走进新鼎龙
返回上一级
公司简介
企业文化
车间设备
产品中心
返回上一级
门窗系列
幕墙系列
工业系列
其他系列
新闻资讯
返回上一级
行业资讯
企业新闻
服务支持
企业优势
联系方式
English
产品分类
门窗系列
幕墙系列
工业系列
其他系列
您好,您当前所在位置:
首页
> 145/165/170/185/190系列断桥明框幕墙
返回列表
上一个
下一个
工作时间:周一到周五 09:00-18:00
产品快速导航
门窗系列
幕墙系列
工业系列
其他系列
关于我们
公司简介
公司文化
企业优势
服务支持
地址:江阴市华士镇新华路39号
联系人:屈先生 13952487526
联系人:贡先生 13373619000
电话:0510-86218937
邮箱:qubin@xindinglong.cn
QQ:892318971
关注我们
Copyright © 2025 江阴新鼎龙铝型材有限公司 备案号:
苏ICP备2022037428号-1
Designed by HUSEO
网站首页
产品中心
一键拨打
一键导航